3D Tour
No 3d Tour Available
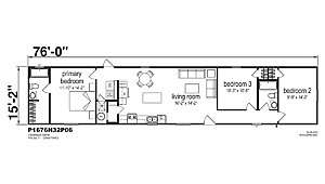
Gallery
Tours & Videos
No Videos Available
Specifications
Additional Specs: FRAME - PLANT MADE - AMERICAN STEEL - 99-1/2" SPACING / ENERGY STAR / DOWNFLOW METAL DUCT - PLANT MADE
Floor Decking: FLOORS - 2x6 16"O.C. - 19/32" OSB T&G
Interior Wall On Center: 16" O.C.
Interior Wall Studs: 2x4 SIDEWALLS
Side Wall Height: 8' SIDEWALLS - FLAT CEILINGS
Roof Decking: ROOF DECKING - 7/16" OSB
Insulation (Floors): R22
Insulation (Walls): R11
Insulation (Roof): R22
Eaves: 6" OVERHANG EAVES - METAL VENTED
Shutters: VINYL SHUTTERS - FDS ONLY
Floor Decking: FLOORS - 2x6 16"O.C. - 19/32" OSB T&G
Interior Wall On Center: 16" O.C.
Interior Wall Studs: 2x4 SIDEWALLS
Side Wall Height: 8' SIDEWALLS - FLAT CEILINGS
Roof Decking: ROOF DECKING - 7/16" OSB
Insulation (Floors): R22
Insulation (Walls): R11
Insulation (Roof): R22
Eaves: 6" OVERHANG EAVES - METAL VENTED
Shutters: VINYL SHUTTERS - FDS ONLY
Front Door: FRONT DOOR - 36x80 METAL INSWING w/STORM
Rear Door: REAR DOOR - 34x80 METAL OUTSWING w/9-LITE GLASS
Shingles: 25 YEAR SHINGLES
Siding: EXTERIOR - 1/4" FOAM CORE - VINYL SIDING
Window Type: LOW E- VINYL WINDOWS
Rear Door: REAR DOOR - 34x80 METAL OUTSWING w/9-LITE GLASS
Shingles: 25 YEAR SHINGLES
Siding: EXTERIOR - 1/4" FOAM CORE - VINYL SIDING
Window Type: LOW E- VINYL WINDOWS
Ceiling Texture: CELING FINISH - 1/2" S/E UNFINISHED SEAMS
Safety Alarms: CO2 DETECTOR
Interior Doors: INTERIOR DOORS - 2 PANEL HOLLOW CORE
Interior Walls: INTERIOR WALL 5/16" VINYL OVER GYPSUM
Interior Lighting: 4" LED LIGHTS
Interior Flooring: LINO T/O
Cabinetry & Counters: LINED CABINETS / 1/2" MDF CABINET STYLES / 1/2" MDF CABINET STYLES / 3/8" MDF CABINET DOORS / 30" OVERHEAD CABINETS / HIGH PRESSURE LAMINATE TOPS & EDGES
Safety Alarms: CO2 DETECTOR
Interior Doors: INTERIOR DOORS - 2 PANEL HOLLOW CORE
Interior Walls: INTERIOR WALL 5/16" VINYL OVER GYPSUM
Interior Lighting: 4" LED LIGHTS
Interior Flooring: LINO T/O
Cabinetry & Counters: LINED CABINETS / 1/2" MDF CABINET STYLES / 1/2" MDF CABINET STYLES / 3/8" MDF CABINET DOORS / 30" OVERHEAD CABINETS / HIGH PRESSURE LAMINATE TOPS & EDGES
Additional Specs: 1 - EXTERIOR WATER FAUCET
Electrical Service: 200 AMP 20/40 MAIN ELECTRIC
Thermostat: PROGRAMMABLE THERMOSTAT
Water Heater: 40G ELECTRIC WATER HEATER
Water Shut Off Valves: WHOLE HOUSE WATER SHUT OFF
Plumbing/Electrical: PEX WATER SUPPLY - PVC DRAIN
Electrical Service: 200 AMP 20/40 MAIN ELECTRIC
Thermostat: PROGRAMMABLE THERMOSTAT
Water Heater: 40G ELECTRIC WATER HEATER
Water Shut Off Valves: WHOLE HOUSE WATER SHUT OFF
Plumbing/Electrical: PEX WATER SUPPLY - PVC DRAIN
Bathroom Sink: BATH VANITIES 36" / SINKS & FAUCETS - PLASTIC
Bathroom Bathtubs: TUB/SHOWER - PLASTIC
Bathroom Bathtubs: TUB/SHOWER - PLASTIC
Kitchen Refrigerator: 18CU FT FRIDGE - BLACK
Kitchen Range Type: 30" ELECTRIC RANGE - BLACK
Kitchen Additional Specs: PLUMB FOR ICEMAKER / WHITE WIRE SHELVING
Kitchen Range Type: 30" ELECTRIC RANGE - BLACK
Kitchen Additional Specs: PLUMB FOR ICEMAKER / WHITE WIRE SHELVING
Please Note:
All sizes and dimensions are nominal or based on approximate builder measurements. Country Living Modular Homes reserves the right to make changes due to any changes in material, color, specifications, and features anytime without notice or obligation.













